Cấu tạo hệ thống bơm thủy lực
Cấu tạo hệ thống bơm thủy lực Các trạm máy bơm (tiếng Nga là –гидростанция) là cụm chi tiết chính trong hệ thống bơm thủy lực, ngoài nhiệm vụ cung cấp dầu thủy lực cho hệ thống thủy lực, nó còn chức năng điều khiển cơ cấu chấp hành thủy lực (động cơ thủy lực) của hệ thống thủy lực.
Để thiết kế và chế tạo một trạm máy bơm, thì cần phải có đầy đủ các dữ liệu cần thiết như:
Mô tả về chu trình làm việc từng bộ phận trong hệ thống thủy lực.
Số lượng động cơ thủy lực (số lượng xylanh và motor thủy lực).
Ứng lực hệ thống cần phải sinh ra trên cơ cấu công tác (đối với xylanh là lực sinh ra tại cán xylanh, đối với motor thủy lực là mômen xoắn sinh ra trên trục quay của motor).
Vận tốc chuyển động của cơ cấu chấp hành (vận tốc cán xylanh hoặc tốc độ quay trục motor thủy lực);
Điều kiện nơi làm việc của hệ thống thủy lực (nhiệt độ môi trường, độ ẩm, mức độ bụi bẩn, khả năng cháy nổ,…).
Chế độ làm việc của hệ thống thủy lực: nhẹ, trung bình, nặng. Chế độ này đánh giá dựa trên thời gian làm việc liên tục trên 1 ca làm việc của máy.
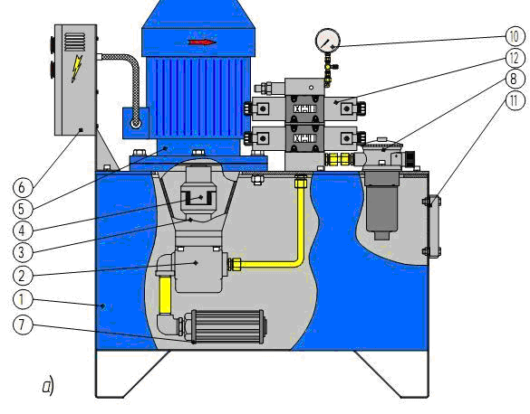
Các chi tiết chính của một trạm máy bơm bao gồm:

Hình 1 – Các chi tiết chính của một trạm máy bơm thủy lực
a. Trạm máy bơm điều khiển bằng điện
b. Trạm máy bơm điều khiển bằng tay.
1. Thùng chứa dầu
Thùng chứa dầu được chế tạo từ gang hoặc từ thép chống cháy. Bề mặt trong của thùng chứa được gia công “phun cát” (gia công phun cát) và được phủ 2 lớp polyme. Công dụng chính của thùng chứa dầu là chứa dầu và cung cấp dầu thủy lực cho hệ thống. Đối với những trạm máy bơm phải làm việc liên tục, trong thùng chứa thường được lắp thêm các vách ngăn, có tác dụng lọc thô và làm mát dầu thủy lực.
2. Máy bơm thủy lực
Tùy thuộc vào đặc tính kỹ thuật và điều kiện làm việc của trạm máy bơm mà lựa chọn sử dụng bơm bánh răng, bơm piston hoặc bơm cánh gạt.
3. Ống lót
4. Khớp nối
Công dụng truyền động từ động cơ điện tới trục máy bơm.
5. Động cơ điện
Là chi tiết dẫn động cho bơm thủy lực.
6. Bảng điện
Bao gồm các nút khởi động và tắt trạm bơm thông qua việc cung cấp điện cho động cơ điện, cũng có thể bao gồm nút phân phối điện cho bộ phận van phân phối điền khiển bằng điện.
Hệ thống lọc
80% các sự cố xảy ra trong quá trình làm việc của hệ thống thủy lực có liên quan tới việc độ sachk của dầu thủy lực không đúng tiêu chuẩn hoặc không đạt tiêu chẩu cần thiết.
Mỗi trạm máy bơm đều được trang bị hệ thống lọc dầu thủy lực và lọc không khí. Hệ thống lọc bao gồm các bộ lọc được lắp đặt tại các nhánh đường ống khác nhau trong hệ thống, nhưng các cách lắp chính và phổ biến đó là: Tổ hợp lọc tại ống hút và ống nén, tổ hợp lọc tại ống hút và ống xả; tổ hợp lọc tại ống nén và ống xả, tổ hợp tại cả 3 ống hút, nén, xả.
7. Lọc tại ống hút
Có tác dụng lọc các tạp chất, cặn kim loại trong chất lỏng trước khi chất lỏng đi vào máy bơm. Bộ lọc được lắp đặt trực tiếp trên đường ống hút, nối từ thùng chứa dầu tới máy bơm, và phải được lắp chìm dưới mức dầu trong thùng chứa.
Do lắp đặt tại ống hút vì vậy bộ lọc này sẽ ảnh hưởng tới khả năng hút chất lỏng của bơm, cho nên yêu cầu kỹ thuật đối với bộ lọc tại ống hút là phải có tính cản trở dòng chất lỏng thật nhỏ. Cũng bởi vì có tính cản trở nên các bộ lọc tại ống hút chỉ có công dụng lọc thô.
8. Lọc tại ống xả.
Lọc tại ống xả có chức năng loại bỏ cặn, tạp chất (sản phẩm của quá trình mài mòn giữa các chi tiết trong hệ thống) có trong dầu thủy lực trước khi xả dầu về thùng chứa. Do không ảnh hưởng tới hiệu quả công tác của các chi tiết khác trong hệ thống nên các bộ lọc tại ống xả thường được dùng là các bộ lọc tinh. Độ mỏng của màng lọc chỉ khoảng 25 μm.
9. Cửa rót dầu với lọc không khí.
Cửa rót dầu với lọc không khí là 1 chi tiết trong hệ thống lọc của trạm máy bơm.Trong thời gian hoạt động, mức dầu trong thùng chứa thay đổi. Thông qua lỗ thông gió hút hoặc đẩy không khí từ khí quyển vào trong thùng chứa. Mà trong không khí thường có bụi bẩn, nếu không được lọc sẽ hòa lẫn vào trong dầu thủy lực, ảnh hưởng xấu tới hiệu suất làm việc của hệ thống thủy lực.
10. Áp kế
11. Thang chỉ mức dầu
12. Cụm thiết bị phân phối (van phân phối hay là van đảo chiều)
Một số dạng cấu trúc của trạm máy bơm
Hình.4. – Một số dạng cấu trúc của trạm máy bơm
а – Trạm máy bơm với cụm motor điện – máy bơm thẳng đứng. Ưu điểm của kiểu lắp đặt này là có độ ồn nhỏ.
b,c – Trạm máy bơm với cụm motor điện – máy bơm thủy lực nằm ngang. Thường sử dụng khi máy bơm thủy lực là dạng bơm không cố định (máy bơm có khả năng thay đổi lưu lượng).
Mời các bạn tham khảo qua sản phẩm dầu nhớt của chúng tôi, khi sử dụng sản phẩm của chúng tôi bạn sẽ được:
+ Bảo hiểm cho máy móc của bạn khi có sự cố từ dầu của chúng tôi
+ Cam kết thu hồi hàng khi dầu của chúng tôi không giống như miêu tả
+ Ngoài ra còn được ưu đãi về giá từ nhà máy và miễn phí vận chuyển cho khu vực Hồ Chí Minh.
Hãy đến với CÔNG TY CỔ PHẦN BEELUBE VIỆT NAM, chúng tôi là đơn vị sản xuất và chuyên cung cấp dầu nhớt công nghiệp: dầu động cơ, dầu thủy lực, dầu cắt gọt kim loại, dầu truyền nhiệt, dầu bánh răng, dầu chống gỉ, nhiều loại dầu công nghiệp khác...
CÔNG TY CỔ PHẦN BEELUBE VIỆT NAM Là đơn vị sản xuất và cung cấp dầu nhớt công nghiệp.
Địa chỉ: 1606 Nguyễn Cửu Phú, Tân Kiên, Bình Chánh, TP.HCM, Việt Nam
Điện thoại: 0904.321.290
MST: 0317367889 - Email: daucatgotkimloai@gmail.com
Website: https://beelubevietnam.com/

Xem thêm